
Exclusive DHHälfte in Zeven !
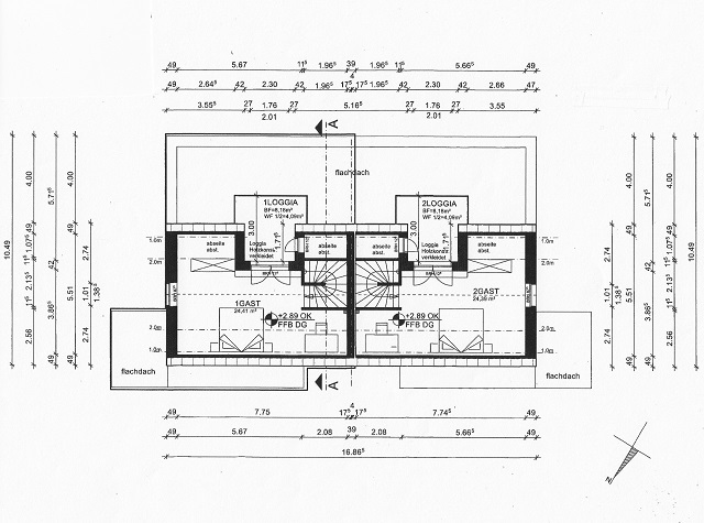
Diese neuwertige (Erstbezug 2022) Haushälfte befindet sich in ruhiger und dennoch zentraler Lage. Von hier aus sind alle Dinge des täglich Bedarfs wie Supermärkte, Apotheken, Ärzte sowie die Innenstadt fußläufig erreichbar. Durch den barrierearmen Grundriss im EG und einem relativ überschaubaren Garten, wäre es in jedem Fall auch ein schöner Wohnsitz für die reifere Generation. Das Haus ist wie folgt aufgeteilt : Das EG besteht aus einem großzügigen Wohnzimmer mit offener Küche und bodentiefen Fenstern zur Terrasse, einem Schlafzimmer mit Platz für einen großen Schrank, einem schicken Bad mit ebenerdiger Dusche, einem HWRaum und einem Flur ; ca. 74 m² Wohnfläche. Im DG befindet sich ein großes Gäste-/Hobby-/Arbeitszimmer mit kleiner Dachterrasse - zusätzlich ca. 28 m² Wohnfläche. Zu dem Mietobjekt gehört ein Carport, ein weiterer Pkw-Stellplatz, ein Außenabstellraum sowie Garten vor und hinter dem Haus. Folgende Ausstattung erwartet Sie : Fußbodenheizung, Design-Bodenbelag in den Wohnräumen, Fliesen in den sonstigen Räumen sowie auf der Treppe, schicke weiße EBK mit angrenzendem Essplatz, weiße Innentüren, tapezierte Wände mit hellem Anstrich, eingelassene Deckenleuchten im DG, Netzwerkkabel in allen Zimmer, Heizung/Wärmepumpe, Lüftungsanlage mit Wärmerückgewinnung. Die Verbrauchskosten rechnet der Mieter direkt mit den Versorgern ab. Das Haus kann ab dem 1. Juni 2023 neu gemietet werden. Bei den Fotos handelt es sich um Archivbilder aus 2022.
Zeven | Objekt-Nr. 182 | € 1070,-
Miete : 1070 € ,-
Neben-/Betriebskosten : € 100,-
Kaution : € 2.140 ,-
Zimmer : 3
Wohnfläche : ca. 102 m²
Grundstück : ca. 350 m²
Baujahr : 2022
Verfügbar ab : 01.06.2023
Energieausweis : Energiebedarfsausweis
Energieverbrauchskennwert : 24,4 kWh(m²a)
Hauptenergiesträger : Strom-Mix
Energieeffiziensklasse : A+
Alle Angaben beruhen auf den uns von dem Verkäufer erteilten Auskünften. Für Richtigkeit und Vollständigkeit übernehmen wir keine Haftung. Dieses Angebot ist freibleibend und unverbindlich. Bitte beachten Sie unsere AGB.