
NEUBAU/ERSTBEZUG : Zwei hochwertige DHHälften mit großem Garten !
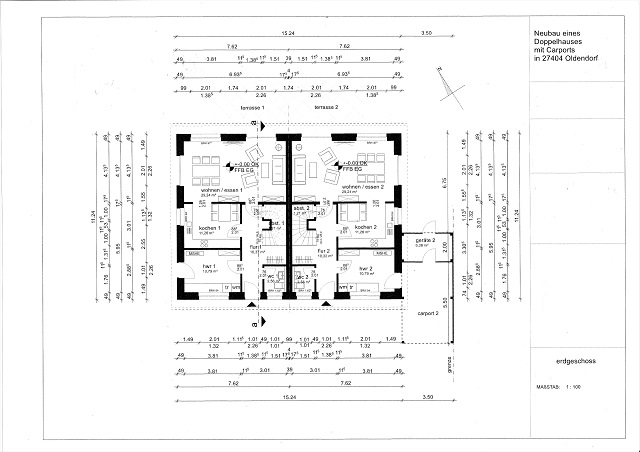
Diese exclusiven DHHälften werden derzeit in Zeven / OT Oldendorf mittig des gewachsenen Dorfkerns erstellt und sind voraussichtlich Mitte Februar 2022 bezugsfertig. Der gut durchdachte Grundriss bietet im EG ein großes Wohnzimmer, eine halboffene Küche mit EBK, einen HWRaum mit Nebeneingangstür, ein Gäste-WC und eine eine Diele mit Abstellraum unter der Treppe. Im DG befinden sich drei nahezu gleich große Zimmer, ein Bad mit Dusche und Wanne und ein Flur mit Einschubtreppe zum Spitzboden ; insgesamt ca. 123 m² Wohnfläche. Zu den Häusern gehört jeweils eine Terrasse, ein Carport / Doppelcarport mit Außenabstellraum und ein großer Garten. Folgende Ausstattung erwartet Sie : hochwertige EBK, Fußbodenerwärmung im ganzen Haus, Designfliesen, Eiche-Echtholzdielen in Wohn- und Schlafräumen, Netzwerkkabel in allen Zimmern, Sat-Anlage und eine Terrasse mit Echtglasüberdachung. Energiesparsamer KfW 40+ Standard mit Wärmepumpe und Erdwärme-Tiefenbohrung - kombiniert mit einer hocheffizienten Lüftungsanlage. Der Ortsteil Oldendorf ist nur wenige PKW-Minuten von Zeven-Stadt entfernt und auch mit dem Rad gut zu erreichen. Er liegt zudem direkt am Naherholungsgebiet "Grosses Holz" und ist teilweise noch durch landwirtschaftliche Betriebe geprägt. Die Verbrauchskosten rechnen die Mieter direkt mit den Versorgern ab.
Zeven/OT | Objekt-Nr. 145 | € 1040,-
Miete : je 1040 € ,-
Neben-/Betriebskosten : je € 100,-
Kaution : je € 2.080 ,-
Zimmer : je 4
Wohnfläche : je ca. 123 m²
Grundstück : je ca. 750 m²
Bezug ab : 15.02.2022
Energieausweis : Energiebedarfsausweis
Energieverbrauchskennwert : 5 kWh(m²a)
Energieeffiziensklasse : A+
Alle Angaben beruhen auf den uns von dem Verkäufer erteilten Auskünften. Für Richtigkeit und Vollständigkeit übernehmen wir keine Haftung. Dieses Angebot ist freibleibend und unverbindlich. Bitte beachten Sie unsere AGB.