
![]()
KEIN SCHÖNES HAUS....
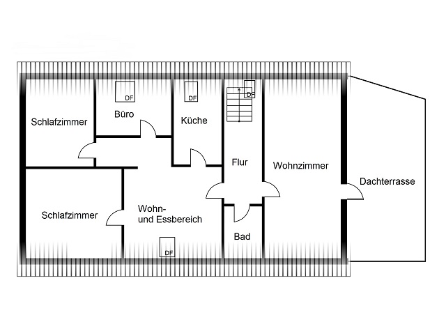
..... - jedoch eine der mittlerweile seltenen Gelegenheiten bei denen Kaufpreis und Mieteinnahme in einem lukrativen Verhältnis stehen. Hier gibt es sicher einiges zu bemängeln: ältere Fenster, einfache Bäder, am Dach muss was gemacht werden, mittelgute Lage....aber: alle sprechen von "bezahlbarem Wohnraum" - das Problem ist allerdings, dass offensichtlich niemand ihn erschaffen kann oder will. Umso wertvoller wird der - immer weiter schwindende - Bestand. Dieses Wohnhaus (Ursprung ca. 1938 / Umbau ca. 1955) mit drei separaten Einheiten (ca. 55-, 68- und 120 m²) bietet vielfältige Nutzungsmöglichkeiten: Eine grosse Familie könnte das Haus komplett für sich nutzen (hierbei wäre allerdings zu beachten, dass die beiden Wohnungen im EG derzeit vermietet sind), ein Anleger - idealerweise mit handwerklichem Geschick - startet mit einer Nettokaltmiete von EUR 8.820,- p.a. für die beiden EG-Whgen, investiert ca. EUR 10 TSD in die 120 m²-DG-Wohnung und vermietet diese dann für zusätzliche EUR 6.300,- kalt p.a. - mögliche NKM p.a. also gesamt ca. EUR 15.000,- (wenn Sie den Kaufpreis finanzieren wird Ihr jährlicher Zins-/Tilgungsaufwand ca. EUR 12.000,- betragen. Zur Vertiefung in die Thematik siehe gerne auch: Jens Stegeberg Immobilien Zeven - Kapital bilden ) oder der neue Eigentümer vermietet die Wohnungen im EG weiter, nutzt die obere Wohnung mit grosser Dachterrasse für sich selbst und freut sich - bedingt durch die Mieteinnahmen - über eine sehr geringe mtl. Belastung. Doppelcarport, Nebengebäude mit überdachtem Freisitz, Dachterrasse und ca. 565 m² Grundstück - dieses entspricht einem Bodenrichtwert von ca. EUR 60.000,- - somit verbleiben für den m² Wohnfläche ca. EUR 570,- !! Einfach einmal durchrechnen und ggf. weitere Fragen in einem Telefonat klären. Dieses Objekt wird komplett "provisionsfrei" angeboten.
Zeven | Objekt-Nr. 1107 | € 200.000,-
Kaufpreis : € 200.000,-
Zimmer : 11
Grundstück : ca. 565 m²
Wohnfläche : ca. 245 m²
Baujahr : ca. 1938/55
Courtage : PROVISIONSFREI
Verfügbar ab : nach Vereinbarung
Energieausweis : Energiebedarfsausweis
Energieverbrauchskennwert : 207,4 kWh/(m²a)
Alle Angaben beruhen auf den uns von dem Verkäufer erteilten Auskünften. Für Richtigkeit und Vollständigkeit übernehmen wir keine Haftung. Dieses Angebot ist freibleibend und unverbindlich. Bitte beachten Sie unsere AGB.